Skip to content
Bedminster results

Two rooms available in spacious 3 bedroom house

Ad details

Message

Ad reference no. 18131506

Two rooms available, with spacious shared living area including the lounge, kitchen and conservatory.

This was our previous family home and has been decorated as such. The property contains many additional lighting features.

The property is either available by the room or as a whole property (depending on who reaches out first - individuals or whole groups).

Room 1 - Taken subject to references £750 Double room with ensuite bathroom with shower

Room 2 - Available £750 Bedroom + large loft room (with WC). You need to be 5 ft 6 inch or shorter to stand up in the loft room.

Room 3 - £650 Double bed (no ensuite)

Situated in Ashton Vale.

Close to transport links (bus and rail - Parsons Street). Walking distance to North Street. Short drive or bus to city center.

Large garage and additional off street parking.

Smart lighting with additional effect lighting in several rooms.

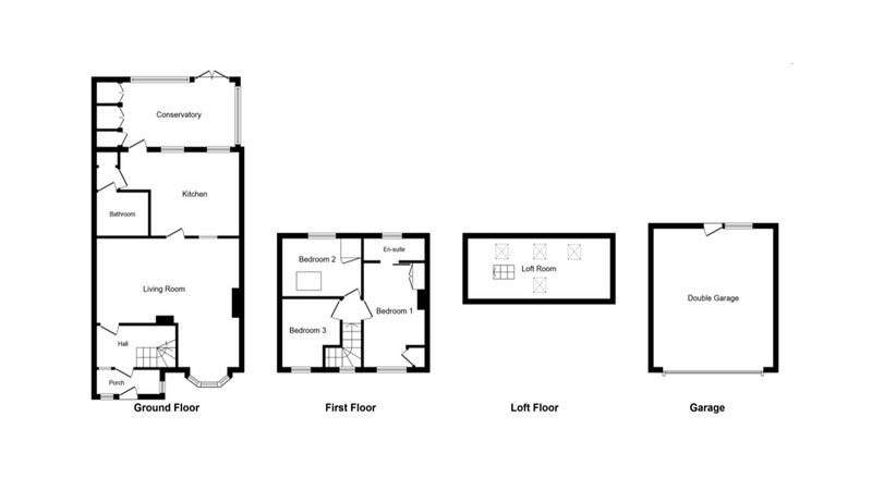
Large lounge, kitchen (dishwasher) and conservatory (with underfloor heating, suitable for all year usage).

Family bathroom with separate shower and bath (there are 3 toilets in the property). Mains pressure shower, gas central heating and double glazed throughout.

More detail for the individual rooms.

Bedroom 1 - The largest bedroom with ensuite bathroom has a double bed and mattress provided. Lots and lots of wardrobe space. £750 pcm.

Bedroom 2 - Bedroom and double attic room. The bedroom is unfurnished for flexibility but will fit a double bed. The attic room spans the whole width of the property, with WC. It provides views across the city and out to the Clifton suspension bridge. It makes an ideal private lounge or office. £750 pcm.

Bedroom 3 - High double sleeper with mattress, together with cupboard and clothes rail. £650 pcm. Coloured LED lighting strip around room.

References and credit checks will be required.

EPC rating C
Council tax Band B
Deposit will be paid into the DPS.

Professionals and mature/postgraduate students considered
Communication directly with the owners (me - Sandy & husband Bryan)
Many Thanks

  • House share
  • Bedminster
  • BS3
£750 pcm
(NOW LET)
£750 pcm
double
£650 pcm
double

Availability

Available
Available now
Minimum term
12 months
Maximum term
None
  • Short lets considered

Extra cost

Deposit
(Room 2)
£860.00
Deposit
(Room 3)
£750.00
Bills included?
No

Amenities

Furnishings
Furnished
Parking
Yes
Garage
Yes
Garden/patio
Yes
Balcony/roof terrace
Yes
Disabled access
Living room
shared
Broadband included
No

Current household

# housemates
1
Total # rooms
3
Age
30
Smoker?
No
Any pets?
No
Occupation
Other
Gender
Male

New housemate preferences

Couples OK?
No
Smoking OK?
No
Pets OK?
No
Occupation
Available to all
References?
Yes
Min age
21
Max age
45

Report this ad

We have staff moderating our ads 7 days per week to keep quality high. Please help us with our job and let us know if there is a problem with this ad. For example, if

  • The photos are not of the room advertised
  • The description is misleading
  • The ad is generic rather than for a specific available room
  • The advertiser is not a live out landlord

Register for FREE

Register via email

You've viewed 4 ads, register now for FREE to see more

Register via email