Skip to content
St Annes results

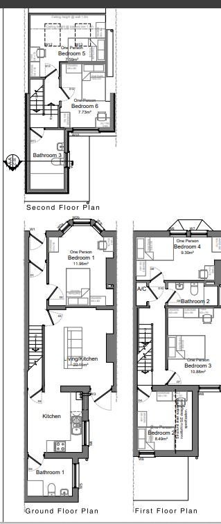
Room in a Shared House, Arlington Road, BS4

Ad details

Message

Ad reference no. 18055239

NEW TODAY
Free to contact

Welcome to your new home — a beautifully designed, high-specification property created for ambitious young professionals who appreciate modern design, comfort, and connection.

Every room has been thoughtfully styled with calming tones, premium furnishings, and clever use of space, creating a perfect balance between boutique luxury and everyday practicality.

Fully refurbished throughout (2025) — everything brand new, from flooring to furniture.

Designer kitchen with dual ovens, integrated appliances, and feature lighting — perfect for social cooking or a morning coffee before work.

Spacious open-plan living area with high-quality furnishings, smart TV, and dining space — ideal for relaxing or working from home.

Six boutique bedrooms, each individually styled with: Bespoke feature wall panelling Double bed with premium mattress Solid wood furnishings and ample storage Workspace with desk and chair Soft lighting and blackout curtains for restful nights

Three sleek bathrooms with rainfall showers and contemporary tiling.

Private garden — ideal for unwinding after work or hosting BBQs with housemates.

Perfectly located for young professionals, with easy access to: Major commuter routes into central Bristol Local cafes, gyms, and independent shops Excellent public transport links

The Details High-speed Wi-Fi included

Fortnightly cleaner for communal areas

All bills included (gas, electricity, water, council tax, internet) Professional housemates only

This isn’t your typical house share — it’s a lifestyle upgrade for driven professionals who want more than just a place to sleep.

Enquire today to be among the first to view this exclusive home and secure your room.(Please note that the property is currently in the final stages of its renovation, the pictures are from a previous project but will be reflective of the final finish)

  • House share
  • St Annes
  • BS4
View on map
£800 pcm
double
£728 pcm
single
£775 pcm
double
£775 pcm
double
£800 pcm
double
£800 pcm
double

Availability

Available
08 Dec 2025
Minimum term
None
Maximum term
None

Extra cost

Deposit
(Room 1)
£800.00
Deposit
(Room 2)
£728.00
Deposit
(Room 3)
£775.00
Deposit
(Room 4)
£775.00
Deposit
(Room 5)
£800.00
Deposit
(Room 6)
£800.00
Bills included?
Yes

Amenities

Furnishings
Furnished
Parking
Yes
Garage
No
Garden/patio
Yes
Balcony/roof terrace
No
Disabled access
No
Living room
shared
Broadband included
Yes

New housemate preferences

Couples OK?
No
Smoking OK?
Yes
Pets OK?
No
Occupation
Not suitable for students
References?
Yes
Min age
18

Report this ad

We have staff moderating our ads 7 days per week to keep quality high. Please help us with our job and let us know if there is a problem with this ad. For example, if

  • The photos are not of the room advertised
  • The description is misleading
  • The ad is generic rather than for a specific available room
  • The advertiser is not a live out landlord

Register for FREE

Register via email

Register for FREE

Register via email