All bills included | your private ensuite | High speed internet | permit parking available | your private bathroom |Modern kitchen | 🛏 Ensuite Double Room Available on Park Street📍 All Bills Included | Fully Furnished | Excellent Location
Properties on the Market is pleased to present this charming two-storey brick terraced house with a tiled roof, offering a fully furnished ensuite double room in a well-maintained shared residence.
📍 Prime Location – Park Street
Conveniently situated near a range of local amenities, including:
Shops on Uphill Lincoln
Bishop Grosseteste University
Lincoln High Street, City Centre, and University of Lincoln
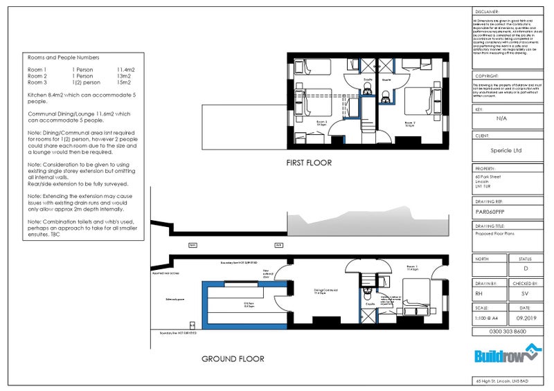
🏡 Property Features:
4 bedrooms
4 bathrooms (each room with private ensuite)
Well-equipped kitchen with breakfast bar
Bright backyard perfect for relaxing
🛏 Room Includes:
Private ensuite bathroom
Double bed
Wardrobe
Chest of drawers
Bedside cabinet
Private fridge freezer
💡 All-Inclusive Bills:
Covered by trusted providers:
Anglian Water
Scottish Power
Virgin Media
Strong mobile coverage for EE, Virgin, O2, and Vodafone
📋 Additional Info:
Deposit: Equal to one month’s rent
Council Tax Band: A
EPC Rating: C
Free from flood risk, coastal erosion, or coalfield proximity
🚫 Please Note:
No step-free access, wet rooms, or lateral living
home-based businesses, are not permitted
📞 Ready to View?
Our friendly team is available to arrange a viewing at your convenience. Contact usToday
- Flat share
- Lincoln
- LN1
- £162 pw
- double En suite
Availability
- Available
- 16th Apr 2026
- Minimum term
- 6 months
- Maximum term
- None
Extra cost
- Deposit
- £700.00
- Bills included?
- Yes
Amenities
- Furnishings
- Furnished
- Parking
- Yes
- Garage
- No
- Garden/patio
- Yes
- Balcony/roof terrace
- No
- Disabled access
- No
- Living room
- shared
- Broadband included
- Yes
Current household
- # flatmates
- 3
- Total # rooms
- 4
- Smoker?
- No
- Any pets?
- Yes
- Occupation
- Other
- Gender
- 3 Females
New flatmate preferences
- Couples OK?
- Yes
- Smoking OK?
- No
- Pets OK?
- Yes
- Occupation
- Available to all
- References?
- Yes