Skip to content
Woolwich results

Studio with Separate Kitchen, All Bills Included

Ad details

Message

Ad reference no. 18191807

NEW TODAY
Free to contact

Studio (Single occupancy only, alll bills Included)

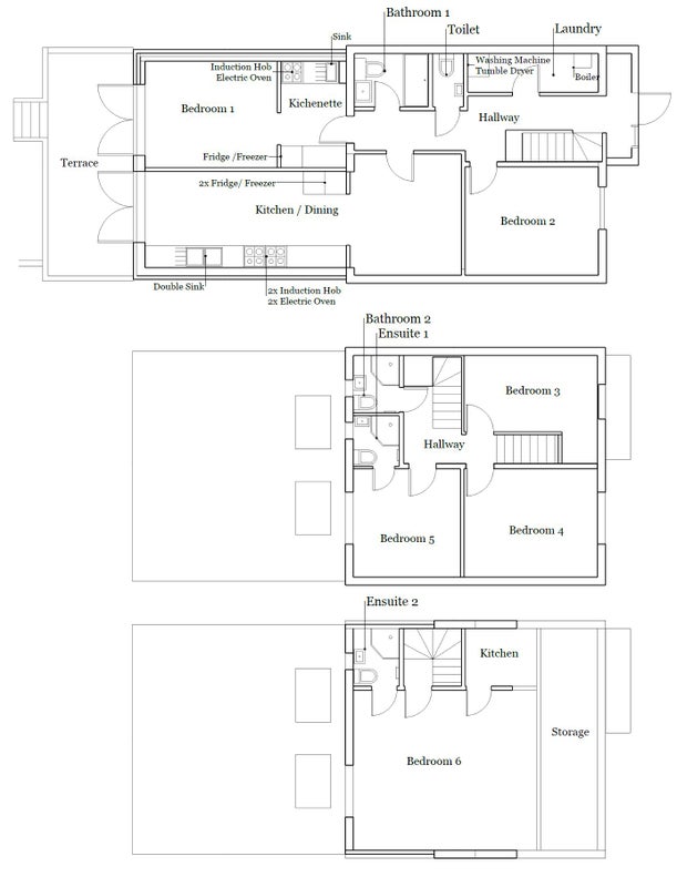
About the Studio (Room 6 on the floor plan)
Studio in the loft with a fully equipped separate kitchen and ensuite bathroom. The studio is furnished with: a double bed, wardrobe, chest of drawers, sofa, TV and TV stand, dining table and chairs. Also, there is a massive storage space under the eaves. Size of the studio 6.4mx5m. The studio is on the top floor of HMO house. Access is through the house.

The house:
- fully refurbished to a high standard
- fully licensed HMO
- all furniture, appliance, bathrooms, floors, etc - everything is new
- laundry room with washing machine & tumble dryer
- underfloor heating throughout with separate controls on each floor
- solar panels
- energy rating A - chance to live in an environmentally friendly house
- high-speed internet
- large shared garden
- a professional landlord manages the house
- common areas are maintained by a cleaner

Location:
- 1min walking from Woolwich Dockyard train station (Zone 3). From the Woolwich Dockyard station, it takes 25min by direct train to London Bridge and many more central London locations
- 10 - 15min walk from Woolwich Arsenal station (Zone 4). Woolwich Arsenal station is served by: DLR, Elizabeth Line and National Rail
- 15 - 20min by bus to North Greenwich (Zone 2). North Greenwich station is served by Jubilee Line (24h metro service during weekends)
- plenty of buses toward Greenwich

Rent details:
- all bills included
- Professionals or students welcome
- 1 month deposit + 1 month rent
- 12 month contract
- no agency fees, private landlord

  • Flat to rent
  • Woolwich
  • SE18 Area info
  • Woolwich Dockyard Station Tube map
    Train station icon 0-5 minutes walk away

£1,290 pcm (whole property)

This ad is for a Studio flat

Availability

Available
9th Apr 2026
Minimum term
6 months
Maximum term
None

Extra cost

Security deposit
£1,290.00

Amenities

Furnishings
Furnished
Parking
Yes
Garage
No
Garden/patio
Yes
Balcony/roof terrace
No
Disabled access
No
Living room
own

New tenant preferences

Smoking OK?
No
Pets OK?
No
Occupation
Available to all
References?
No

Report this ad

We have staff moderating our ads 7 days per week to keep quality high. Please help us with our job and let us know if there is a problem with this ad. For example, if

  • The photos are not of the room advertised
  • The description is misleading
  • The ad is generic rather than for a specific available room
  • The advertiser is not a live out landlord

Register for FREE

Register via email

You've viewed 4 ads, register now for FREE to see more

Register via email