Skip to content
West Drayton results

High St Studio Rooms Opposite West Drayton Station

Ad details

Message

Ad reference no. 6495280

Free to contact

* Recently created 6 En-Suite Studio Rooms finished to great standard.

* Room A is currently available.

* Opposite West Drayton Station.

* Ideal for a person wanting a clean, modern, friendly home.

* Each room is Bright with en-suite Shower Rooms, Kitchenette's (no cooking facilities), built in floor to ceiling wardrobes and built in desks.

* Rent includes council tax, water, gas and electricity bills.

*Free Virgin Media High Speed WiFi access throughout property.

*Fully fitted communal kitchen - washing machine, dryer, Two Ovens and Hob.

* Two parking spots for the residents of the house. Parking permit area, permits cost circa £35 for the year.

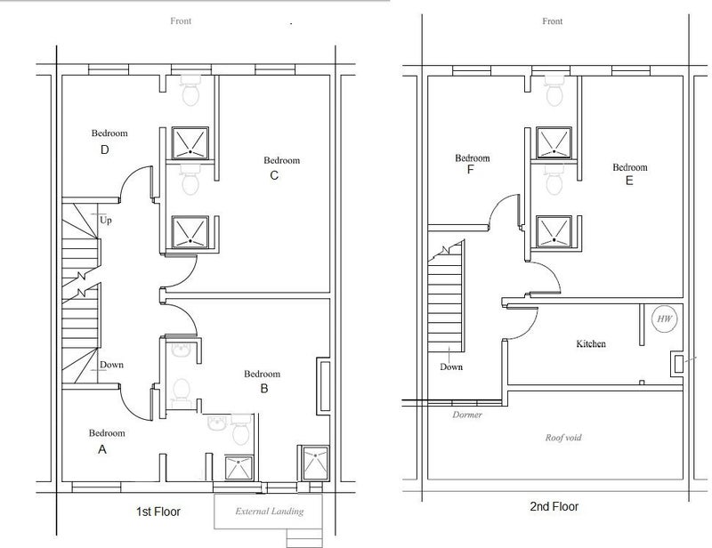
* Please see the floor plan:

Room 1 Price = Room A On Floor Plan and so on

*Excellent location off the High Street: walking distance to local shops, Hillingdon Hospital, Brunel University and a short drive to Heathrow Airport, Uxbridge, Stockley Park & Hillingdon hospital. Easy access to M4, M25, A4 and A40

* We are Professional landlord - members of the National Landlords Association. We take our responsibility seriously. The property has current fire safety, and electrical testing certificates. The property has been re-designed to meeting the Housing Act 2006 HMO standards, including fire doors and smoke alarms.

* References are essential.

* Please phone, text or email via SpareRoom to arrange viewings. If I do not answer, please leave a message reference to the property, area & price and I'll call you back.

£600 pcm
(NOW LET)
£650 pcm
(NOW LET)
£775 pcm
(NOW LET)
£675 pcm
(NOW LET)
£775 pcm
(NOW LET)
£675 pcm
(NOW LET)

Availability

Available
Available now
Minimum term
6 months
Maximum term
None

Extra cost

Bills included?
Yes

Amenities

Furnishings
Furnished
Disabled access
Living room
No
Broadband included
Yes

Current household

# flatmates
5
Total # rooms
6
Ages
22 to 35
Smoker?
No
Any pets?
No
Occupation
Other
Gender
3 Females, 2 Males

New flatmate preferences

Couples OK?
No
Smoking OK?
No
Pets OK?
No
Occupation
Available to all
References?
Yes
Min age
18
Max age
65

Report this ad

We have staff moderating our ads 7 days per week to keep quality high. Please help us with our job and let us know if there is a problem with this ad. For example, if

  • The photos are not of the room advertised
  • The description is misleading
  • The ad is generic rather than for a specific available room
  • The advertiser is not an agent

Register for FREE

Register via email

You've viewed 4 ads, register now for FREE to see more

Register via email