Skip to content
Morden results

Ensuite Double Room by Morden Station (5min walk)

Ad details

Message

Ad reference no. 18156453

NEW TODAY
Free to contact

***Single occupancy only – no couples.***
*****VIEWING HIGHLY RECOMMENDED*****

Remote viewing or video tour is also available upon request

📍 Location
5 minutes’ walk to Morden Station (Northern Line)
25 minutes direct to London Bridge
30 minutes direct to Bank Station
10 minutes’ walk to Lidl and Sainsbury’s
Just a few minutes’ walk to Morden High Street, with shops, cafés, restaurants, and local amenities all nearby

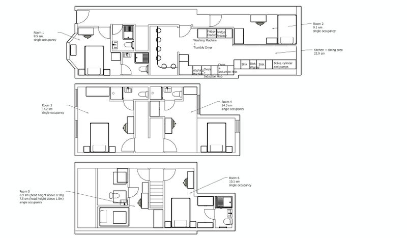
🏡 The House
A fully renovated house with luxury interior design, finished to a high standard throughout.
- Private ensuite bathroom in every room (shower, toilet, basin, mirror cabinet)
- Well-designed bedrooms, fully furnished with small double bed & mattress, wardrobe and chest of drawer, bedside tables, desk & chair
- Large, fully equipped modern kitchen with: 2 x fridge/freezers, 2 x sinks, 2 x hobs, 2 x ovens, 2 x washing machines, 1 x dishwasher, 1 x tumble dryer, 1 x microwave
- Each tenant is allocated one wall cabinet and one base cabinet
- Bright dining area linked to the kitchen with plenty of workspace – ideal for dining or co-working
- Superfast fibre-optic Wi-Fi, with Wi-Fi points in every bedroom
- Secure bike storage in the garden. Bikes can be brought in and out easily via the back garden door

ℹ️ Important Notes
- References and affordability checks required
- Minimum 6-month tenancy (no short lets)
- No pets
- No smoking
- Rent to be paid by standing order

£1,000 pcm
double En suite
£1,000 pcm
double En suite
£1,150 pcm
double En suite
£1,150 pcm
double En suite
£950 pcm
double En suite
£1,100 pcm
double En suite

Availability

Available
20th Feb 2026
Minimum term
6 months
Maximum term
None

Extra cost

Deposit
(Room 1)
£1,153.00
Deposit
(Room 2)
£1,153.00
Deposit
(Room 3)
£1,326.00
Deposit
(Room 4)
£1,326.00
Deposit
(Room 5)
£1,096.00
Deposit
(Room 6)
£1,269.00
Bills included?
Yes

Amenities

Furnishings
Furnished
Parking
No
Garage
No
Garden/patio
Yes
Balcony/roof terrace
No
Disabled access
No
Living room
No
Broadband included
Yes

New housemate preferences

Couples OK?
No
Smoking OK?
No
Pets OK?
No
Occupation
Available to all
References?
Yes

Report this ad

We have staff moderating our ads 7 days per week to keep quality high. Please help us with our job and let us know if there is a problem with this ad. For example, if

  • The photos are not of the room advertised
  • The description is misleading
  • The ad is generic rather than for a specific available room
  • The advertiser is not a live out landlord

Register for FREE

Register via email

You've viewed 4 ads, register now for FREE to see more

Register via email